

For sale in the 13th district, Bessenyei Street (Cezar House), an excellent condition, 77 m², 2nd-floor, 3-room, air-conditioned apartment.
The condominium features 24-hour concierge service and a closed-circuit video surveillance system providing enhanced security, while a well-maintained private ornamental garden contributes to the peaceful atmosphere.
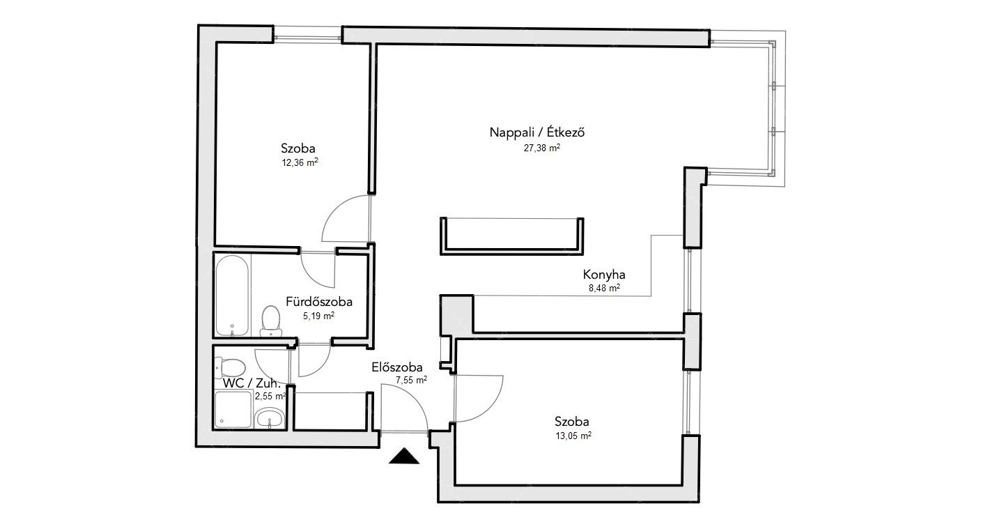
The property consists of: an entrance hall; a fully fitted kitchen (with ceramic hob, electric oven, extractor fan, refrigerator, and dishwasher); a spacious living room with dining area; two bedrooms; one bathroom with a bath and another with a shower.
The sophisticated apartment is characterized by borovi pine windows, quality built-in furnitures, tiles, and sanitary fittings; shading is provided by thermally insulated electric shutters.
Public transportation in the area is excellent, the M3 metro station just a few minutes' walk away. Nearby, you will find a kindergarten, school, various shopping options (Lehel Market, Spar, Lidl), a medical clinic, and a pharmacy.
The apartment includes an easily accessible parking space in the condominium’s underground garage – located close to the staircase and elevator – which is available for optional purchase.
The price is 14 million HUF.
The display is flexible, so feel free to call us!
We love the beautiful apartment Daniel Holcsik found for us in Budapest! Daniel is thoroughly knowledgable, listened to what we wanted and offered us several choices. His English is flawless. Daniel and his colleague, Katalin Makkai, made the process from selection to signing the lease effortless. We would highly recommend Daniel Holcsik to anyone looking for an apartment in Budapest! He exceeded our expectations in every way possible.
Rich & Michelle Jones
A perfect and very professional service! I could only recommend
Donat Hortion
I found the perfect apartment for my daughter with mighty help from Daniel Holcsik, and even after she‘s long moved in he is always pleased to help with great efficiency and infinite friendliness - more than recommendable!!! Thank you very much!
Franziska Rickmers
Thank you!! Excellent service.
Stefan Longobardi
Thank you so so much for all your help, you've been fantastic.
Cait Brown
The EUR price is only indicative, calculated at the rate of 1 EUR = 388 HUF
The pictures are illustrative, any description made or referred on this Site are subject to availability,
do not constitute an offer and may be withdrawn or revised by EUROCENTER (or by the operator) at any time.