

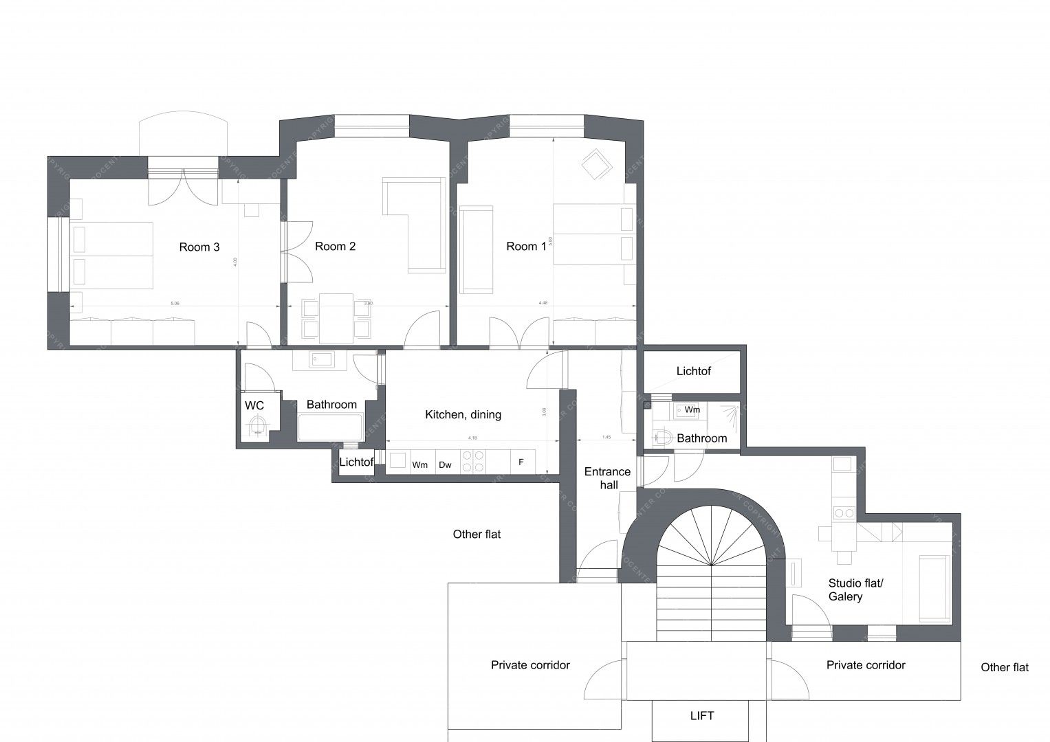
A 107 sqm, newly renovated, furnished apartment with a balcony and air conditioning, consisting of two units is for sale on Wesselényi Street. The 18 sqm smaller unit has a separate entrance door, it consists of one room, a gallery, a kitchen, and a bathroom. The larger, 89 sqm unit has 2 bedrooms, a living room, a separate kitchen, a bathroom, a separate toilet, and a balcony with view over the street.
Other features: house central heating, electrical water boiler, the common cost is 26 000 HUF with water use and heating, the pipes were changed in the apartment
We love the beautiful apartment Daniel Holcsik found for us in Budapest! Daniel is thoroughly knowledgable, listened to what we wanted and offered us several choices. His English is flawless. Daniel and his colleague, Katalin Makkai, made the process from selection to signing the lease effortless. We would highly recommend Daniel Holcsik to anyone looking for an apartment in Budapest! He exceeded our expectations in every way possible.
Rich & Michelle Jones
A perfect and very professional service! I could only recommend
Donat Hortion
I found the perfect apartment for my daughter with mighty help from Daniel Holcsik, and even after she‘s long moved in he is always pleased to help with great efficiency and infinite friendliness - more than recommendable!!! Thank you very much!
Franziska Rickmers
Thank you!! Excellent service.
Stefan Longobardi
Thank you so so much for all your help, you've been fantastic.
Cait Brown
The EUR price is only indicative, calculated at the rate of 1 EUR = 382 HUF
The pictures are illustrative, any description made or referred on this Site are subject to availability,
do not constitute an offer and may be withdrawn or revised by EUROCENTER (or by the operator) at any time.