

Spacious, Classic Apartment for Sale on Damjanich Street – 160 sqm, 4 Rooms, with Solar Panels and Air Conditioning!
This apartment is located in a well-maintained residential building dating back to the 1910s, comprising 18 units. The building has been continuously renovated: in 2024, the inner façade, entrance, and staircase were refurbished, the entire utility system was replaced, and Telekom's fiber optic network was installed.
The apartment features high ceilings (3.8 m) and a practical layout. It has southeast-facing courtyard rooms and northwest-facing street-view windows, providing excellent natural light throughout the day. Since 2000, several renovations have taken place: exterior doors and windows were replaced or refurbished five years ago, the entire heating system was modernized 7–8 years ago, and a solar panel system installed in 2016 helps keep utility costs low. The monthly common cost is HUF 44,000, and thanks to the solar panels, the electricity bill is virtually zero.
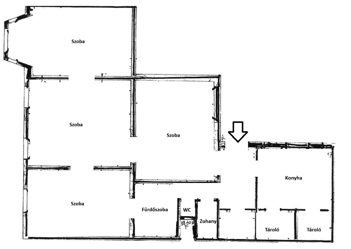
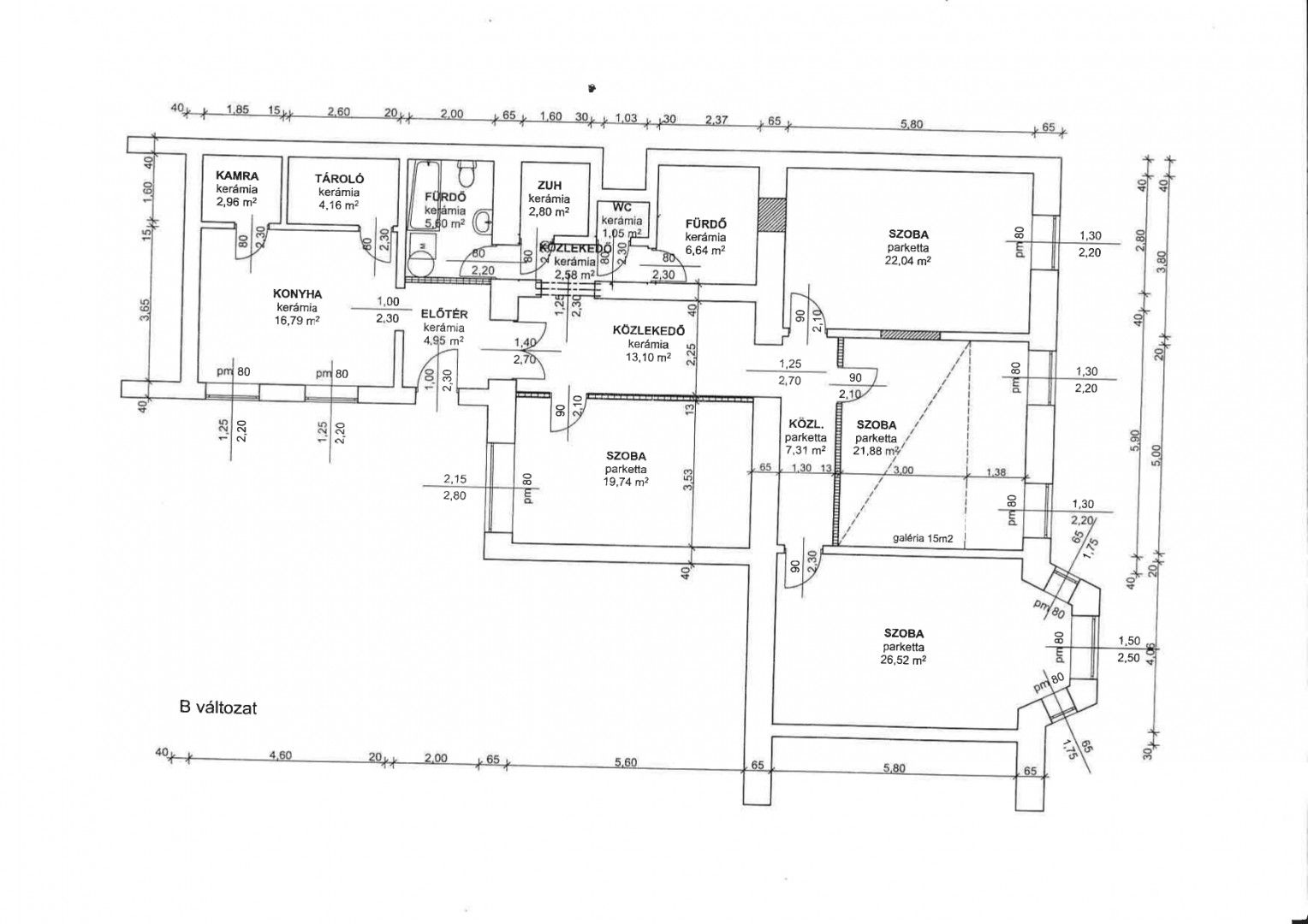
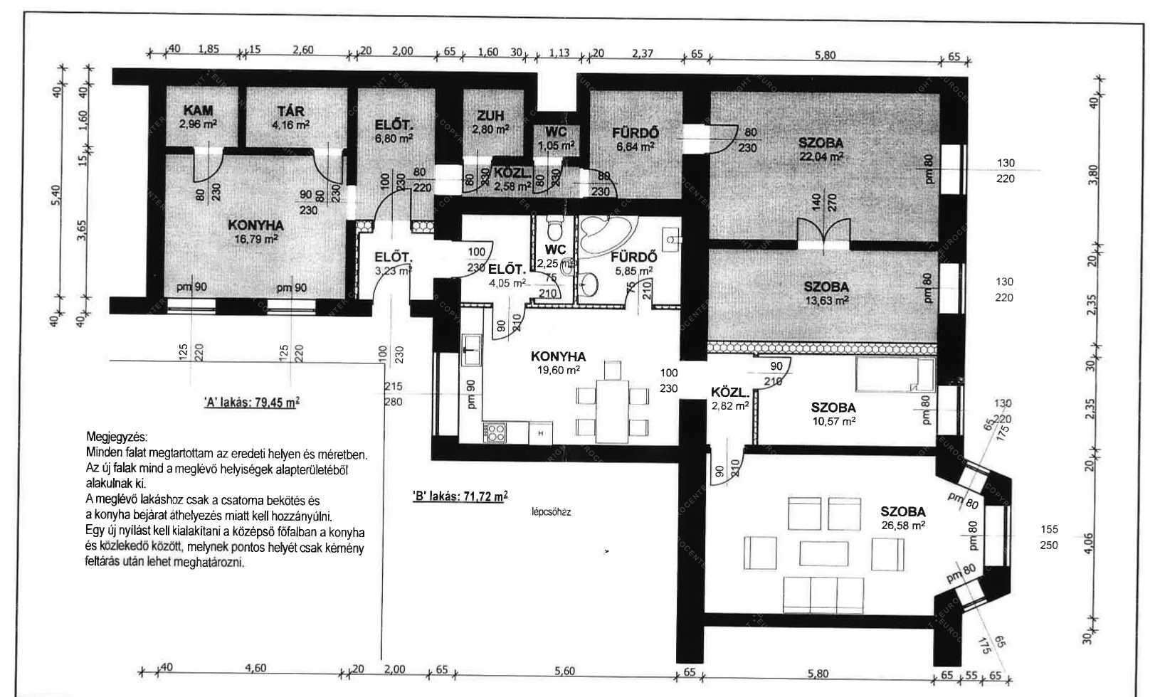
The apartment currently has 4 rooms, but its layout is flexible and can even be converted into two separate units.
The location is excellent – just a 10-minute walk to City Park and Keleti Railway Station. Nearby public transport includes trolleybuses (70, 78), buses (105, 210), and the M1 metro line. Restaurants, shops, pharmacies, universities, student residences, and parking options (annual residential parking for HUF 30,000) as well as underground garages are also available in the vicinity.
The apartment also comes with a basement storage unit.
We love the beautiful apartment Daniel Holcsik found for us in Budapest! Daniel is thoroughly knowledgable, listened to what we wanted and offered us several choices. His English is flawless. Daniel and his colleague, Katalin Makkai, made the process from selection to signing the lease effortless. We would highly recommend Daniel Holcsik to anyone looking for an apartment in Budapest! He exceeded our expectations in every way possible.
Rich & Michelle Jones
A perfect and very professional service! I could only recommend
Donat Hortion
I found the perfect apartment for my daughter with mighty help from Daniel Holcsik, and even after she‘s long moved in he is always pleased to help with great efficiency and infinite friendliness - more than recommendable!!! Thank you very much!
Franziska Rickmers
Thank you!! Excellent service.
Stefan Longobardi
Thank you so so much for all your help, you've been fantastic.
Cait Brown
The EUR price is only indicative, calculated at the rate of 1 EUR = 382 HUF
The pictures are illustrative, any description made or referred on this Site are subject to availability,
do not constitute an offer and may be withdrawn or revised by EUROCENTER (or by the operator) at any time.